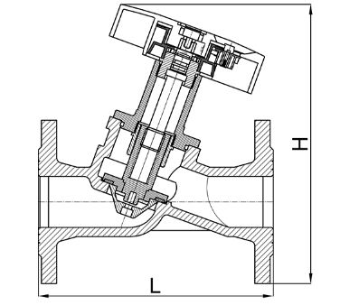
Balancing Valve